Teollisen mittaluokan sähkövarastot, bess (ei kotiakut)

fraatti

Hyperaktiivi
Kunnianhimoiset suunnitelmat kieltämättä. Kun laittaan googleen hakusanaksi "NWJ-FIN" niin kyllähän noita on jo aikas paljon. Pidetäänköhän näistä mitään rekisteriä kapasiteetista tai tehosta?
1724659670145.png


Näköjään jotkut ovat nuijineet vuokran sidotuksi indeksiin. Osa painaa kiinteällä 40v.
1724659771449.png

 
Viimeksi muokattu:

tet

Hyperaktiivi
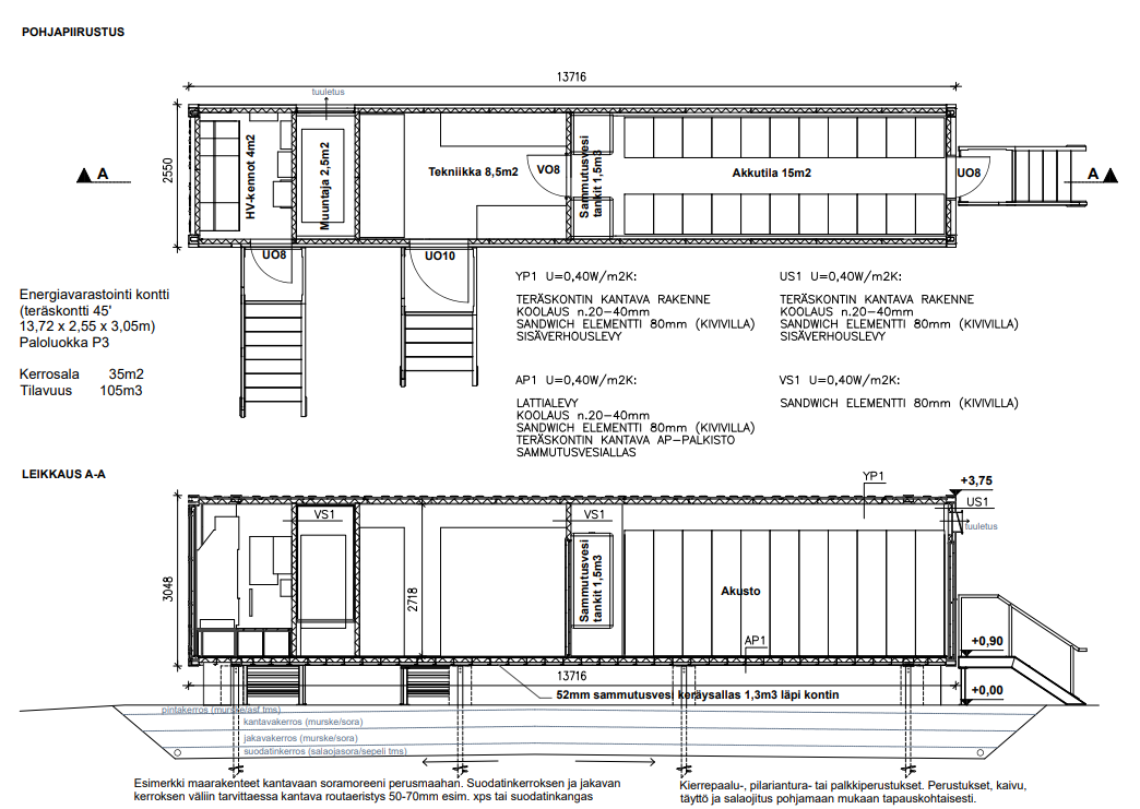
Kapasiteetti näytti olevan noin 3 MWh ja teho 1,25 MW. Liitäntä 20 kV verkkoon. Patterikontti näytti olevan kiinalaista alkuperää ja LFP tekniikalla.

Täällä meidän kulmakunnalla alkaa syksyllä taas uuden datakeskuksen rakennustyö, sen uutisoinnissa herätti huomion termi "sähkökontti". Katselin asiasta löytyviä kuvatuksia, ja sinne näytti tulevan 29 kpl dieselgeneraattoreita, ja jokaista generaattoria kohti yksi "sähkökontti". En äkkiä keksinyt, mistä muusta voisi olla kyse, kuin akkukonteista. Niiden kapasiteetista en löytänyt tietoa, mutta rakennusluvan pinta-alatietojen perusteella yhden kontin pinta-ala on 41,5 m2 ja tilavuus 164 m3, eli kontit ovat lähes neljä metriä korkeita.

Generaattorit varavoimana ei toki datakeskukselle ole mikään outous, ja UPS-sähköäkin siellä tarvitaan ennen genujen käynnistymistä. Mutta ehkäpä noita "kontteja" nykyään suunnitellaan myös säätösähkökauppaa ajatellen?
 

fraatti

Hyperaktiivi
Täällä meidän kulmakunnalla alkaa syksyllä taas uuden datakeskuksen rakennustyö, sen uutisoinnissa herätti huomion termi "sähkökontti". Katselin asiasta löytyviä kuvatuksia, ja sinne näytti tulevan 29 kpl dieselgeneraattoreita, ja jokaista generaattoria kohti yksi "sähkökontti". En äkkiä keksinyt, mistä muusta voisi olla kyse, kuin akkukonteista. Niiden kapasiteetista en löytänyt tietoa, mutta rakennusluvan pinta-alatietojen perusteella yhden kontin pinta-ala on 41,5 m2 ja tilavuus 164 m3, eli kontit ovat lähes neljä metriä korkeita.

Generaattorit varavoimana ei toki datakeskukselle ole mikään outous, ja UPS-sähköäkin siellä tarvitaan ennen genujen käynnistymistä. Mutta ehkäpä noita "kontteja" nykyään suunnitellaan myös säätösähkökauppaa ajatellen?
Tuossa oli asiasta hiukan. 7 ms:ssa pystyvät säätymään ja akkua on koko laitoksen tehon verran.

Disconnects in milliseconds
Bjerke points out that almost all data centers are built with a number of security systems to guarantee 100 percent uptime. This means that the data centers have an installed battery capacity as large as the maximum consumption can be, in addition to having generators that can produce the same amount of power.

There are a number of ways in which this flexibility can be exploited.

For example, the Stacks data centers can disconnect from the grid in just 7 milliseconds' notice, if a strained situation occurs in the power grid.

- It is also rare that the entire sold capacity of the data centers is used, and then we can offer this to the power grid, says Bjerke.

He believes that the network owners in Norway are a little behind in terms of flexibility, and what resources the data centers can actually offer.

- The fact that the data centers can be flexible in consumption or can produce power should be linked to the connection application. You cannot do that as of today.
 

fraatti

Hyperaktiivi
Kannibaali käy myös säätösähkön kimppuun. Ilmeisesti siitä on saanut hyvän hinnan mutta tulevaisuudessa tilanne voi olla toisin.

The large decline is partly due to lower prices on the spot market, but also that more and more resources - mainly battery stocks - choose to join the support service markets, which increased competition.

- This has led to a cannibalization of the FCR market, says Priyanka Shinde, electricity market expert at Montel Analytics.
Stable need
Svenska kraftnät expects the need for FCR resources to be stable at around 2 GW over the next two years. At the same time, the installation of battery capacity continues to grow rapidly, which will lead to an overcapacity.

For example, a forecast from CheckWatt shows that battery capacity could triple to reach 2.2 GW already by the end of the year, compared to 560 MW in January, where participation in the FCR market has been an important factor in the high interest to invest.

"For a battery owner, the compensation for support services has meant annual income of around SEK 4,500 per kW of battery capacity during 2022-2023, which has meant good profitability for investments in batteries," writes the company.

However, with new capacity coming in, it is unlikely that FCR prices will reach these levels again, and Jens Nordberg, head of energy trading at Varberg Energi, believes that support service prices will remain low in the medium term.

"We believe in a certain recovery of price levels already in late autumn/winter and that we will then see a falling trend to a new equilibrium price level that we will probably reach in 2-3 years", he writes.

Reduced rate of investment
Although there are other revenue streams for battery storage than the FCR market, Jens Nordberg sees a risk that the price drop will lead to a reduced rate of investment for battery projects for a period.
 

VesA

In Memoriam
Generaattorit varavoimana ei toki datakeskukselle ole mikään outous, ja UPS-sähköäkin siellä tarvitaan ennen genujen käynnistymistä. Mutta ehkäpä noita "kontteja" nykyään suunnitellaan myös säätösähkökauppaa ajatellen?
Myös generaattorit ovat omalla tavallaan verkon käytössä - eli datakeskus voi voimalan sammuessa irrottautua verkosta teollisuuslaitoksen tapaan, mutta pysyy käynnissä.
 

RPekka

Aktiivinen jäsen
Myös generaattorit ovat omalla tavallaan verkon käytössä - eli datakeskus voi voimalan sammuessa irrottautua verkosta teollisuuslaitoksen tapaan, mutta pysyy käynnissä.
Niinhän tuossa lontoonkielisesssä todetaan että mikäli sähköpula iskee niin 7 ms aikana päästään irti kokonaan eikä mikään muutu. Lisäksi tuo "datakeskus ei koko ajan käytä täyttä tehoa" tarkoittanee sitä että osa laskennasta ei ole niin aikakriittistä vaan sen voi tehdä halpojen tuntien aikana ja myydä ennakkoon ostetun sähkötehon säätömarkkinoille.
 

VesA

In Memoriam
Niinhän tuossa lontoonkielisesssä todetaan että mikäli sähköpula iskee niin 7 ms aikana päästään irti kokonaan eikä mikään muutu. Lisäksi tuo "datakeskus ei koko ajan käytä täyttä tehoa" tarkoittanee sitä että osa laskennasta ei ole niin aikakriittistä vaan sen voi tehdä halpojen tuntien aikana ja myydä ennakkoon ostetun sähkötehon säätömarkkinoille.
Google kehuu sillä että se myös siirtelee siihen sopivia kuormia datakeskusten välillä - ja saa sillä pienennettyä CO2 päästöjään, mutta varmaan tekee samaa myös hintamielessä.
 

fraatti

Hyperaktiivi
Tuossa Montelin jutussa on mainittu että Saksan suuri aurinkotuotanto pukkaa hinnat laukalle päivän sisäisillä markkinoilla. Jutun mukaan akkuja on Saksassa 10 GW ja tarve olisi 24 GW:lle.

 

fraatti

Hyperaktiivi
Fortumin mukaan sähkönhintojen vaihtelu on suomessa kasvussa -> 2035.

Teollisen mittaluokan akkuja on suomessa jutun mukaan 200 MW ja 2025 mennessä on vielä tarkoitus lisätä 344 MW. :hmm:Liekö jutussa jotain virhettä?

 

Skata

Vakionaama
Teollisen mittaluokan akkuja on suomessa jutun mukaan 200 MW ja 2025 mennessä on vielä tarkoitus lisätä 344 MW. :hmm:Liekö jutussa jotain virhettä?

”A review of the current status of energy storage in Finland and future development prospects”​

7/2024 julkaistu juttu…

”The combined energy storage capacity of the utility-scale BESS currently in operation is about 178 MWh, and the estimated total energy storage capacity of the BESS under construction or under planning is about 400 MWh.”
 

kotte

Hyperaktiivi
Teollisen mittaluokan akkuja on suomessa jutun mukaan 200 MW ja 2025 mennessä on vielä tarkoitus lisätä 344 MW. :hmm:Liekö jutussa jotain virhettä?
Eihän tuollaisen tehomäärän lisäämisessä pitäisi olla minkäänlaista ongelmaa, kunhan varastot hajautetaan sopivasti. Energiamäärähän ylittänee korkeintaan yhden GWh:n, muttei kahta.
 

fraatti

Hyperaktiivi
Eihän tuollaisen tehomäärän lisäämisessä pitäisi olla minkäänlaista ongelmaa, kunhan varastot hajautetaan sopivasti. Energiamäärähän ylittänee korkeintaan yhden GWh:n, muttei kahta.
En sitä tarkoittanut, vaan tuumailin että mahtaako aika piisata....
 

kotte

Hyperaktiivi
En sitä tarkoittanut, vaan tuumailin että mahtaako aika piisata....
Kai noita systeemeitä on melkein valmiina konteissa, paitsi, että akut vielä kytketään paikalleen, jos Saksassakin on asennettu Suomeen verrattuna monikymmenkertainen määrä. Vaikkapa tuulipuiston vieressä on varmaan asfaltoitu ja aidattu pysäköintipaikka tms. muuntajan luona ja äkkiäkös tuollaisia kontteja kytkee sopivalla pinta-kaapelilla muuntajan viereisiin ylimääräisiin liittimiin, jollaisia noihin yhteyksiin on tapana varalle asentaa. Eiköhän tuota voi ohjata pelkän langattoman nettiyhteyden päälle pystytetyn vpn-verkon välityksellä ja käyttää vakio-ohjelmistoja, joita tarkoitukseen saanee "kaupan hyllyltä".
 

fraatti

Hyperaktiivi
Wärtsilältä 5 MWh kontti myös

Koskahan nämä akuista tulevat tehot alkavat näkymään fg:n näkymässä. Vaatii varmaan vielä muutaman vuoden että tehoa alkaa olemaan enemmän.... :hmm:
 

tet

Hyperaktiivi
Koskahan nämä akuista tulevat tehot alkavat näkymään fg:n näkymässä. Vaatii varmaan vielä muutaman vuoden että tehoa alkaa olemaan enemmän.... :hmm:

Vaatinee ainakin sen, että näitä tulee ns. stand-alone-toteutuksina. Eiköhän nuo yleensä ole datakeskusten tms. kyljessä, jolloin niiden purkaminen näkyy vain kyseisen laitoksen kulutuksen pienentymisenä.
 

fraatti

Hyperaktiivi
Savon Voima Verkon alueella on suunnitteilla kymmeniä sähkövarastoja eri puolille Pohjois-Savoa, joista ensimmäiset valmistuvat jo syksyn aikana.
Sähkövarastomarkkinalla on tällä hetkellä useita toimijoita ja varastojen tehot vaihtelevat suuresti. Särkän mukaan Savon Voima Verkon alueelle suunnitteilla olevien varastojen tehot vaihtelevat noin yhdestä megawatista aina jopa 30 megawattiin asti. Yksi Savon Voiman alueelle sähkövarastoja suunnittelevista yrityksistä on Biosolar, jolla on suunnitteilla 9,9 megawatin ja 12 megawattitunnin tehoiset varastot Siilinjärvelle ja Pieksämäelle. Sähkövarasto pystyy tunnissa purkamaan tai lataamaan sähköä saman verran kuin noin 200 sähkölämmitteistä omakotitaloa kuluttaa keskimäärin vuorokaudessa.
 

Mikki

Hyperaktiivi
Teravoimalle alkaa tulemaan kiire jos aikovat kuoria kermaa päältä säätövoimamarkkinoilta. Tuollaisia megawattien akkuja jo ilmestyy kuin sieniä sateella, kun onhan se aikalailla kätevämpää asentaa akustoja rahtikonttikokoluokassa, eikä kuluttajaluokan "jääkaappeina".
 

VesA

In Memoriam
Teravoimalle alkaa tulemaan kiire jos aikovat kuoria kermaa päältä säätövoimamarkkinoilta. Tuollaisia megawattien akkuja jo ilmestyy kuin sieniä sateella, kun onhan se aikalailla kätevämpää asentaa akustoja rahtikonttikokoluokassa, eikä kuluttajaluokan "jääkaappeina".
Kätevämpää varmasti, mutta voi olla että siitä ilosta joutuu maksamaan silti enemmän kuin jääkaapeista.
 

Mikki

Hyperaktiivi
Kätevämpää varmasti, mutta voi olla että siitä ilosta joutuu maksamaan silti enemmän kuin jääkaapeista.
No joo... vertailua toki vaikeuttaa ettei noiden konttien hintoja oikein julkisesti huudella. Ja myöskään Teravoiman kustannuksia on vaikea täysin haarukoida.

Mutta lähinnä siis sitä tarkoitin että olipa nuo kontit kalliimpia tai halvempia, niin kontteja tulee nyt kovalla tahdilla verkkoon ja verkossa ne pysyy.... kun taas Teravoimalla kai vielä lähinnä kartoitellaan ja mietitään mitä oikeastaan myydään.
 

fraatti

Hyperaktiivi
No joo... vertailua toki vaikeuttaa ettei noiden konttien hintoja oikein julkisesti huudella.
Tuosta saa vähän suuntaa. Todennäköisesti hinnat ovat tuosta vielä laskeneet. 2023 alkuvuosi: MW-Storage Nordic Oy rakentaa Ikaalisiin, Leppäkosken Sähkön sähköaseman viereiselle tontille 15 megawatin sähkövaraston, joka liitetään Leppäkosken Sähkö Oy:n jakeluverkkoon. Kokonaisinvestointi on suuruudeltaan yli 10 M€.
 

Mikki

Hyperaktiivi
Tuosta saa vähän suuntaa. Todennäköisesti hinnat ovat tuosta vielä laskeneet. 2023 alkuvuosi: MW-Storage Nordic Oy rakentaa Ikaalisiin, Leppäkosken Sähkön sähköaseman viereiselle tontille 15 megawatin sähkövaraston, joka liitetään Leppäkosken Sähkö Oy:n jakeluverkkoon. Kokonaisinvestointi on suuruudeltaan yli 10 M€.
Huih... Kammottava hinta.

Jos 50kWh kotiakkuja olisi 300 niin siitähän tuloo 15000kWh = 15MWh.

Jolloin 10MEUR hinnalla kuhunkin akustoon voisi kivittää 33 333€. Teravoiman ideassa alkaakin taas olemaan paljon järkeä.
 

fraatti

Hyperaktiivi
Hinnat ovat ainakin olleen melkoisessa laskussa.

After coming down last year, the cost of containerised BESS solutions for US-based buyers will come down a further 18% in 2024, Clean Energy Associates (CEA) said.

The average 2024 price of a BESS 20-foot DC container in the US is expected to come down to US$148/kWh, down from US$180/kWh last year, a similar fall to that seen in 2023, as reported by Energy-Storage.news, when CEA launched a new quarterly BESS pricing monitor.

The consultancy and market intelligence firm provided the update in a long-form article by Dan Shreve, VP of market intelligence, which will be published in the next edition (3:cool: of PV Tech Power, Solar Media’s quarterly journal for the downstream solar and storage industries, later this month.

It means the price for a BESS DC container – comprising lithium iron phosphate (LFP) cells, 3.7MWh and 4-hour duration, delivered with duties paid from China to the US – will have nearly halved by the end of 2024 compared to the highs of 2022, when it hit US$270/kWh.
 

fraatti

Hyperaktiivi
Montelin jutussa on maininta että akkukapasiteetin lisäys verkossa euroopassa saattaisi 7 kertaistua vuoteen 2028 mennessä, 260 GWh asti.

Jutun mukaan kapasiteetti vuoden 2024 alussa oli Ruotsissa 440 MW ja vuoden lopussa voi olla jo 2.2 GW ja 6-10GW 2030. Hirveä tahti. Ihmekös jos rahanlouhinta ei olekaan niin ilmiselvää enää hetken päästä. :hmm:
Erään hinnan kehitys on Ranskassa kulkenut näin: Hourly prices in France’s FCR averaged EUR 17.41/MWh in 2021, EUR 22.23/MWh in 2022, and EUR 7.42/MWh in 2023, according to data from Montel Analytics. Since the beginning of 2024, hourly prices have only averaged EUR 3.57/MWh.

Tuossa pätkä ruotsin kehityksestä myös:
“As a result, you now have battery projects that are developing on revenues other than FCR. The first [source of] income now where all developers turn is the secondary reserve which was opened this year,” Alexis Gleron, head of the energy services firm Augmented Energy told Montel.

The story is the same in Sweden. Very high prices in the FCR market were driving BESS investments in recent years, but those prices plummeted in August due to a surge in BESS and wind farm supply.


Jutussa on myös maininta että akun sijoittaminen suuren kulutuskohteen läheisyyteen mittarin toiselle puolelle voi olla kannattavaa.
 

fraatti

Hyperaktiivi
Britit ovat tuumailleet että akuilla EU:ssa voitaisiin säästää 9 mrd € 2030 kaasusta jota käytetään sähkön tekemiseen.
 

fraatti

Hyperaktiivi
Akku nokittaa kaasun säätövoimana hinnan puolesta?

Aurora has estimated battery energy storage systems (BESS) now cost 10% less to provide reserve capacity for Brazil’s grid than new combined cycle gas turbine (CCGT) power plants.
 

fraatti

Hyperaktiivi
Puolaan 5,4 GWh akkuja. EU tukiaisia näihin luvattu 1,2 mrd €. Unkarissa rakennetaan myös tukiaisilla akkuja.

Suomessa ei ole vastaavia näkynyt tai sitten ei vain ole vain osunut silmiin. Vai ollaanko täällä ainostaan maksajan roolissa?
 

Espejot

Hyperaktiivi
Puolaan 5,4 GWh akkuja. EU tukiaisia näihin luvattu 1,2 mrd €. Unkarissa rakennetaan myös tukiaisilla akkuja.

Suomessa ei ole vastaavia näkynyt tai sitten ei vain ole vain osunut silmiin. Vai ollaanko täällä ainostaan maksajan roolissa?
Olisiko tässä sitä korvamerkittyä rahaa vihersiirtymään?
 

fraatti

Hyperaktiivi
Olisiko tässä sitä korvamerkittyä rahaa vihersiirtymään?
Kaippa sieltä jotain Suomeenkin on tulossa. En vain ole seurannut että mitä. Auroraa rakennetaan myös osin EU-rahoilla jos nyt näistä energiajutuista puhutan. No, olkoon nuo tukihimmelit jonkun muun ketjun aihe. Uutisoinneissa niihin ei ole voinut vaan olla kiinnittämättä huomiota kun summat ovat niin suuria.
1727979244653.png
 

VesA

In Memoriam
TCTF-raha on avustusta Ukrainan sodasta aiheutuneille ongelmille. Käytännössä sitä lienee menny kaasuriippuvaisille maille joiden kulut pomppasivat. Toki raha sitten annetaan vihertäviin hankkeisiin eikä uusiin hiilivoimaloihin. Taitaa olla myös jonkun hintakaton rahoitusta.

Suomessa EU-raha on nyt vähän vaikea asia - toisaalta nettomaksajan roolista naristaan, mutta toisaalta EU raha on ideologisesti saatunutta koska se aiheuttaa riippuvuutta ja on tie liittovaltiomalliin.
 

Espejot

Hyperaktiivi
TCTF-raha on avustusta Ukrainan sodasta aiheutuneille ongelmille. Käytännössä sitä lienee menny kaasuriippuvaisille maille joiden kulut pomppasivat. Toki raha sitten annetaan vihertäviin hankkeisiin eikä uusiin hiilivoimaloihin. Taitaa olla myös jonkun hintakaton rahoitusta.

Suomessa EU-raha on nyt vähän vaikea asia - toisaalta nettomaksajan roolista naristaan, mutta toisaalta EU raha on ideologisesti saatunutta koska se aiheuttaa riippuvuutta ja on tie liittovaltiomalliin.
Korona-avustuksiakin on korvamerkitty vihreisiin hankkeisiin.
 

Espejot

Hyperaktiivi
Suomessa EU-raha on nyt vähän vaikea asia - toisaalta nettomaksajan roolista naristaan, mutta toisaalta EU raha on ideologisesti saatunutta koska se aiheuttaa riippuvuutta ja on tie liittovaltiomalliin.
Liittovaltio-sana on yhtä saastunut kuin sana "äärioikeisto" - käytänössä ne ei tarkoita mitään vaan toimii poliittisena leimakirveenä.
 
Back
Ylös Bottom