Vs: NIBE 410P PILP Hajosi. Tilalle maalämpö vai uusi PILP?
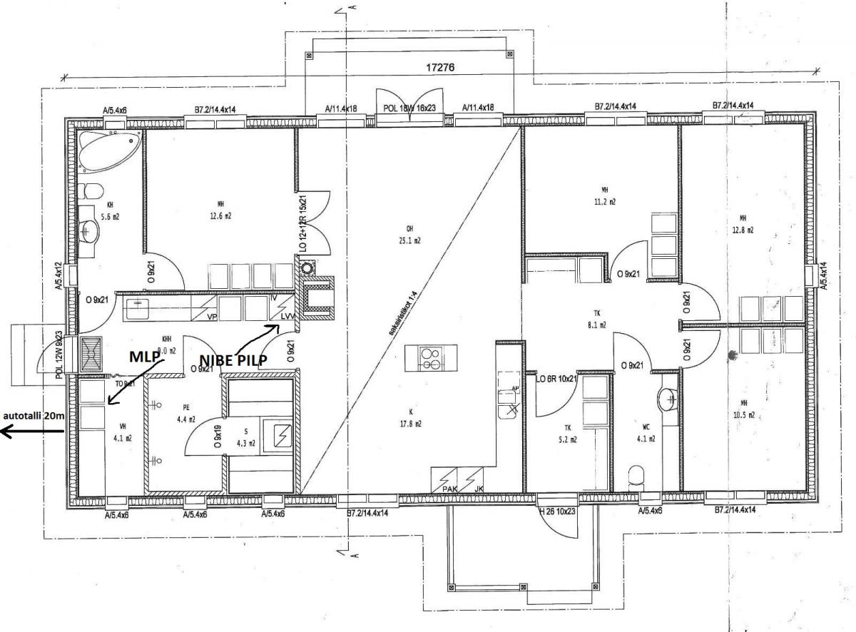
Jos MLP tulee tuonne vaatehuoneeseen, pitää vaatehuoneen lattia vesieristää ja tehdä sinne lattiakaivo. Kaivo on aika helppo tuossa tehdä kun vieressä on eteisessä on jo kaivo.
Lisäksi pitää kytkeä vesi, lämmin käyttövesi ja lämmitysputket nykyiselle jakotukille ja takaisin (=vanha PILPin paikka), tuo onnistunee välikatossakin. Sähköt varmaankin samaa reittiä jos käytetään PILPin syöttöä hyväksi.
Liuosputkien kanssa olisi taas ongelmia jos MLP tulisi nykyisen PILPin viereen KHH:n ja LTO-nykyisen PILPin paikalle.
=> MLP-pumpun sijoitusta sinne autotalliin kannattaa nyt harkita
ps. Laskin että pienellä 25 l/s poistoilmanvaihdolla menisi noin 4500 kWh taivaan tuuliin vuodessa, LTO:lla tuosta saisi talteen noin 1900 kWh eli tämä olisi se mitä siihen nähden olisi "menetys" (kun PILP off).
El_Ucca sanoi:Kyllä tässä nyt ollaan maalämpöön kallistumassa. 11 tarjouspyyntöä tullut nyt lähetettyä.
Jos MLP tulee tuonne vaatehuoneeseen, pitää vaatehuoneen lattia vesieristää ja tehdä sinne lattiakaivo. Kaivo on aika helppo tuossa tehdä kun vieressä on eteisessä on jo kaivo.
Lisäksi pitää kytkeä vesi, lämmin käyttövesi ja lämmitysputket nykyiselle jakotukille ja takaisin (=vanha PILPin paikka), tuo onnistunee välikatossakin. Sähköt varmaankin samaa reittiä jos käytetään PILPin syöttöä hyväksi.
Liuosputkien kanssa olisi taas ongelmia jos MLP tulisi nykyisen PILPin viereen KHH:n ja LTO-nykyisen PILPin paikalle.
=> MLP-pumpun sijoitusta sinne autotalliin kannattaa nyt harkita
ps. Laskin että pienellä 25 l/s poistoilmanvaihdolla menisi noin 4500 kWh taivaan tuuliin vuodessa, LTO:lla tuosta saisi talteen noin 1900 kWh eli tämä olisi se mitä siihen nähden olisi "menetys" (kun PILP off).